En Equalice seguimos impulsando oportunidades profesionales de inversión en el sector inmobiliario. Te presentamos nuestro proyecto «Lofts Urzainqui 1-3», consistente en la compra de un local que transformaremos en dos viviendas en planta baja (tipo loft) para ser vendidas.
Nuestra propuesta se encuentra ubicada en Pamplona (barrio de la Rochapea), en un área totalmente consolidada en población, servicios y comercios; y con unas excelentes conexiones tanto al centro de la ciudad como a barrios anexos.
Desde Equalice calculamos un plazo de 13 meses desde el momento en que realices la inversión hasta el momento en el que la recuperes junto con la plusvalía estimada.
En concreto, estimamos una rentabilidad total del 11,21 % para el proyecto, y una TIR del 10,35 % (rentabilidad anualizada).
DESCRIPCIÓN DE LAS VIVIENDAS TERMINADAS
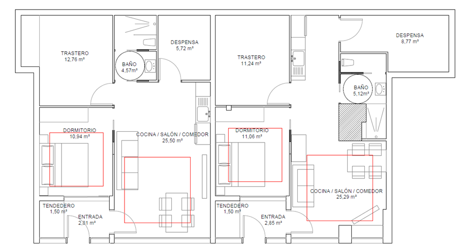
Se trata de 2 viviendas muy similares entre sí, tanto en dimensión como en la distribución que se les va a dar. Ambas viviendas tendrán una fachada amplia que aportará mucha luz a su interior.
Una de las grandes ventajas de esta ubicación es que se encuentra en una calle ancha y diáfana, con muy poco tránsito peatonal, ya que no hay establecimientos comerciales ni hosteleros en las inmediaciones. Esto garantiza un entorno privado y tranquilo, ideal para disfrutar del hogar.



La vivienda cuenta con 1 dormitorio y 2 estancias adicionales, denominadas “despensa” y “trastero”. Estas
DISTRIBUCIÓN E IMÁGENES
La distribución final del proyecto podría sufrir modificaciones.

A continuación, las imágenes representadas replican cómo será la distribución final de las viviendas, con una propuesta de decoración simulada.




¡Recuerda nuestro calendario de inversión!
- 24.03.2025. Apertura del proyecto solo para inversores de Equalice
- 25.03.2025. Apertura del proyecto para otros usuarios
¡No dejes pasar esta oportunidad!
¡Sigue de cerca nuestro proyecto «Lofts Urzainqui 1-3» AQUÍ!

